I tell you that in the same way there will be more rejoicing in heaven over one sinner who repents than over ninety-nine righteous persons who do not need to repent. Luke 15:7
For the ONE Vision:
Jesus invites us to pursue the ONE. We are here, not for ourselves, but to love and serve others so that they might be found by the ONE God who loves us all.
Our vision is to build a permanent location for our West Campus worship community and update youth spaces at our North and South Campuses. A space where we will pursue the ONE and grow together in maturity as the body of Christ.
‘For the ONE’ is a three-year generosity initiative that calls us to give boldly so that we can join God in his saving work in our community.

Our West Campus currently welcomes 650 individuals each week to worship and youth programming. This summer, West Campus shared the Good News with 125 children for Vacation Bible Xperience. Currently, we have 130 volunteers serving in hospitality and 111 serving in youth programming. God is working in this place!
Please prayerfully consider making a pledge or increasing your pledge to the For the ONE vision to help us plan for the future. You may also join our 1,000/1,000 challenge. We are asking that 1,000 households that haven’t yet made a commitment to For the ONE make a $1,000 commitment over the next three years. Which means that for less than $28/month, or one coffee a week, you can help make the For the ONE vision a reality!
With additional support we will be able to break ground this summer with a completion goal of 2 years. Thank you for your prayerful consideration of a gift to the For the ONE generosity initiative.
Site Information
The site for the permanent West Campus is located North of 52nd Ave S and East of 9th Street West. Near Legacy Elementary School and north of The Ranch at the Wilds development.



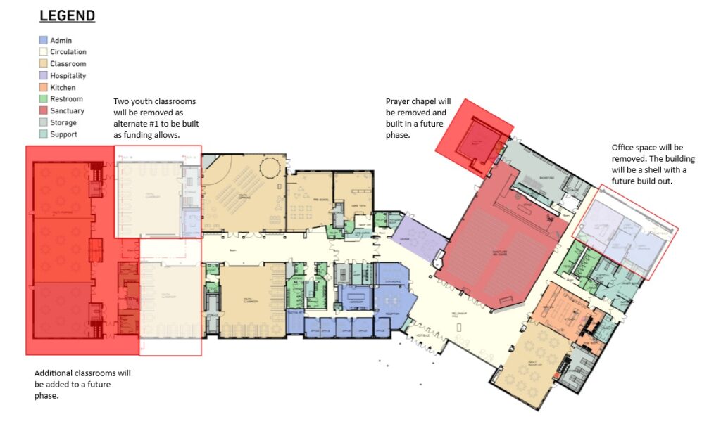
- A sanctuary space that allows for more people to worship God and experience transformation through him.
- A larger centralized gathering area that enhances community.
- Educational spaces designed for youth of all ages and stages so that they may learn the Good News of Jesus.
- Additional youth spaces to allow for continued growth.
- Dedicated adult education space to help grow deeper relationships with Jesus.
- Update youth spaces at North and South Campuses to further our outreach to youth. The financial target for phase one is $28 million.
Phase Two includes: - A larger sanctuary space that can seat many more people in worship.
- Dedicated space for families with active children to engage in worship.
- An expanded gathering area to accommodate the growing number of of people seeking fellowship.
- Worship support spaces and additional storage.
The financial target for phase two is $35 million.
*subject to change

Phase II Exterior – Looking East


*subject to change








*subject to change





FOR THE ONE APPAREL
As part of promotion for our For the ONE sermon series and generosity initiative, congregation members will have the opportunity to order one of two different branded t-shirts, crewnecks, or hoodies from the link at the link below. When ordering select the campus that you would like your order sent to.

